Чтобы наш сайт работал лучше мы используем cookie. Оставаясь с нами, вы соглашаетесь на их использование.  Настройки
×
Загрузка формы...

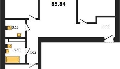
Продаётся 3-комн. квартира, 85.84 м²

id: PK49306
6 июня

10 358 800 ₽

120 675 ₽ за м²
Калининград, ул Коммунистическая
85.84 м²Общая площадь
43.32 м²Жилая площадь
6/8Этаж
Год постройки
2026
Материал стен
Кирпичный
Балкон/лоджия
Есть (1 шт.)
ЖК
Родина

Информация о квартире

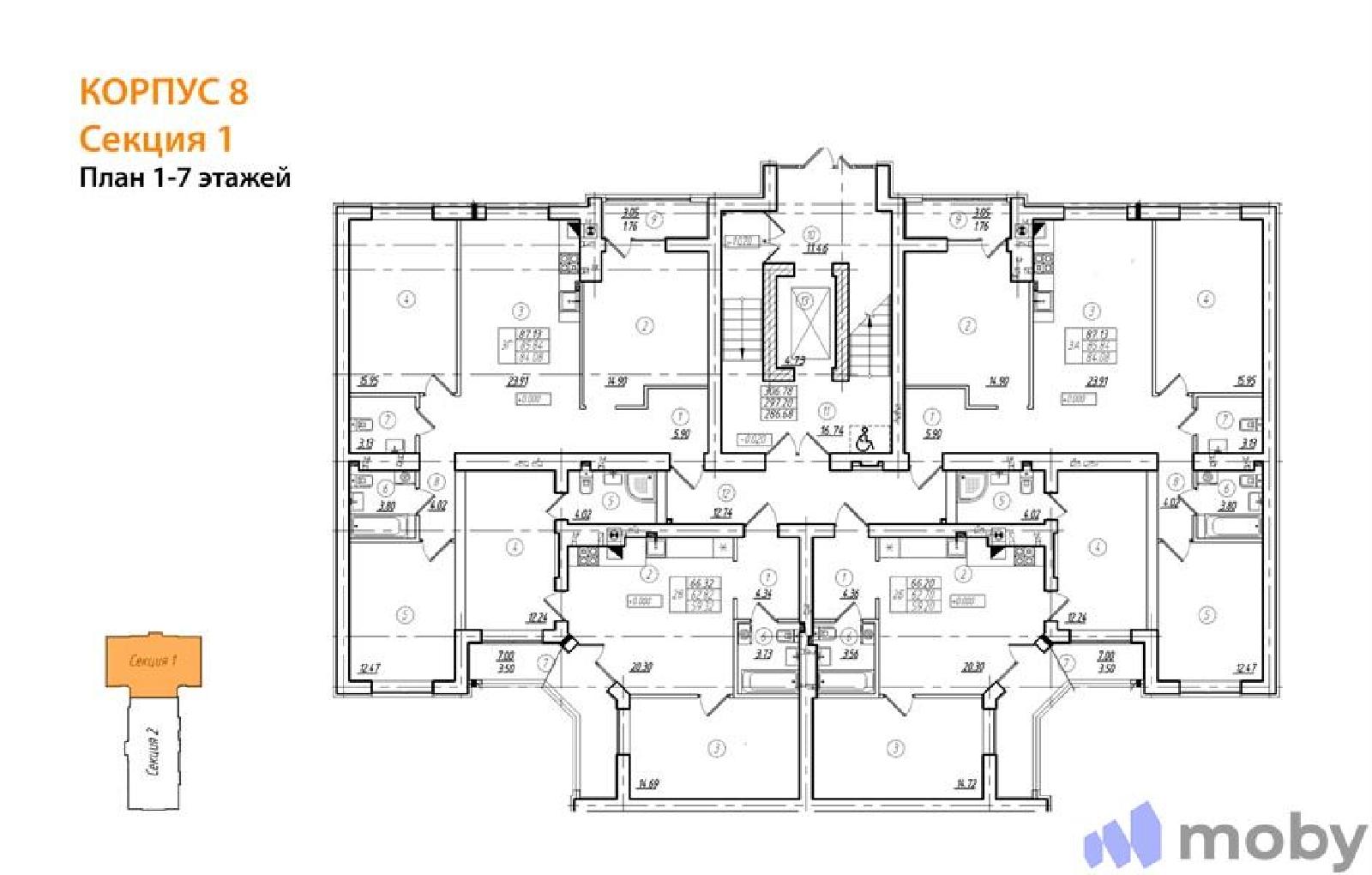
Квартира: 3 к 85,84 кв.м., 6 этаж в комплексе Родина, 8 очередь, корп.8, сдача: 3кв. , этажей: 8, адрес Калининград г., Коммунистическая ул., , Застройщик: Модуль-Стройград.

Расположение

Вам могут понравиться

Фото специалиста
Руководитель НовостроекСпециалист по недвижимости