Чтобы наш сайт работал лучше мы используем cookie. Оставаясь с нами, вы соглашаетесь на их использование.  Настройки
×
Загрузка формы...

Продаётся 2-комн. квартира, 71.6 м²

id: EX20146
11 января

5 100 000 ₽

71 229 ₽ за м²
Калининград, ул Белинского 61А
71.6 м²Общая площадь
35.5 м²Жилая площадь
1/7Этаж
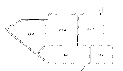
20.8 м² комн.1
14.7 м² комн.2
Год постройки
2004
Есть
Парковка
Здание
под охраной
Материал стен
Кирпичный
Отопление
Теплоцентраль
Водоснабжение
Центральное
Балкон/лоджия
Есть (1 шт.)

Информация о квартире

Продается просторная 2-комнатная квартира в центре Калининграда в районе исторической застройки, бывшем немецком районе «Ратсхоф».


Общая площадь квартиры 71,6 кв.м., две раздельные комнаты по 20,8 кв.м. и 14,7 кв.м., удобная кухня площадью 14,1 кв.м., с выходом на застекленный балкон. Вид на тихую и зеленую зону. В квартире сделан свежий косметический ремонт. Квартира очень светлая, все окна выходят на солнечную сторону. Остается кухонный гарнитур со встроенной плитой и духовкой, а также вместительный шкаф в коридоре.


Кирпичный теплый дом 2004 года, центральное отопление, индивидуальные счетчики. Во дворе достаточно места для парковки. На лестничной площадке можно хранить велосипеды или коляски.


Прекрасная инфраструктура района — рядом школа № 19, детский сад № 2, продуктовые магазины, аптека, остановка общественного транспорта, «SPAR», «Виктория», места для прогулок - лесопарк им. Т.Кроне, озеро "Поплавок", парк культуры и отдыха "Центральный". Прямой выезд на проспект Победы, удобный выезд к морю!

воните, организуем показ в удобное для вас время.



Продажу объекта сопровождает агентство недвижимости «MOBY.ESTATE».


Обеспечиваем грамотное оформление документов, юридическую проверку и безопасность расчетов.


Офис в центре города: ул. 9 Апреля, 86а.

Расположение

Вам могут понравиться

Фото специалиста
Валерий МаковецкийСпециалист по недвижимости