Чтобы наш сайт работал лучше мы используем cookie. Оставаясь с нами, вы соглашаетесь на их использование.  Настройки
×
Загрузка формы...

Продаётся 2-комн. квартира, 44 м²

id: OP09861
17 апреля

4 700 000 ₽

106 818 ₽ за м²
Шоссейное посёлок, ул Калининградское шоссе 24А
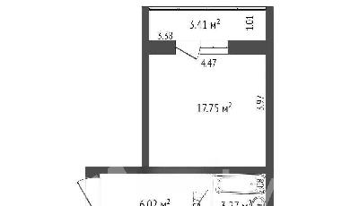
44 м²Общая площадь
24 м²Жилая площадь
2/3Этаж
18.0 м² комн.1
9.0 м² комн.2
Год постройки
2022
Есть
Парковка
Материал стен
Блочный
Отопление
Автономное отопление
Водоснабжение
Центральное
Балкон/лоджия
Есть (1 шт.)

Информация о квартире

Продаётся уютная 2-комнатная квартира в Калининграде.

 Комфорт и удобства:

✔ 2 изолированные комнаты

✔ Автономное отопление – контроль температуры и экономия

✔ Окна на улицу – хорошее естественное освещение

✔ Наземная парковка – всегда есть место для автомобиля

 Особенности:

✔ Тихий и удобный район с развитой инфраструктурой

✔ Квартира в отличном состоянии – можно заезжать и жить

✔ Хорошая транспортная доступность

 Адрес: г. Калининград, ул. Калининградское шоссе, д. 24А, 2 этаж

 Площадь квартиры:

✔ Общая – 44 м²

✔ Кухня – 7 м²

 

Идеальный вариант для комфортной жизни или выгодного вложения!


Продажу объекта сопровождает агентство недвижимости «MOBY.ESTATE».

Обеспечиваем грамотное оформление документов, юридическую проверку и безопасность расчетов.

Офис в центре города: ул. 9 Апреля, 86а.

Расположение

Вам могут понравиться

Фото специалиста
Татьяна АндрееваСпециалист по недвижимости