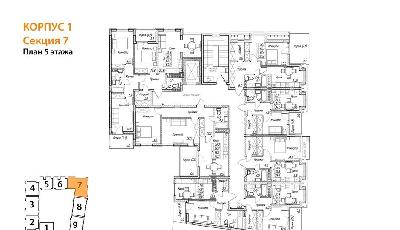
Продаётся 1-комн. квартира, 36.7 м²
id: BO53730
22 января
7 214 500 ₽
Пионерский, ул Прибрежная д. 23 корп 1
36.7 м²Общая
площадь
11 м²Жилая
площадь
5/5Этаж
Год постройки
2026
Материал стен
Кирпично-монолитный
Балкон/лоджия
Есть (1 шт.)
ЖК
Симфония моря
Информация о квартире
Квартира: 1 к 36,70 кв.м., 5 этаж в комплексе Симфония моря, 1 очередь, корп.1, сдача: 1кв. , этажей: 5, адрес Пионерский г., Прибрежная ул., д. 23 корп 1, Застройщик: Модуль-Стройград.
Расположение

Руководитель НовостроекСпециалист
по недвижимости