Чтобы наш сайт работал лучше мы используем cookie. Оставаясь с нами, вы соглашаетесь на их использование.  Настройки
×
Загрузка формы...

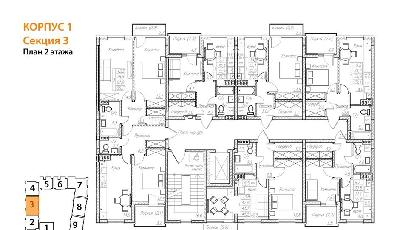
Продаётся 1-комн. квартира, 33.2 м²

id: OT19662
22 января

6 498 800 ₽

195 746 ₽ за м²
Пионерский, ул Прибрежная д. 23 корп 1
33.2 м²Общая площадь
9.7 м²Жилая площадь
2/5Этаж
Год постройки
2026
Материал стен
Кирпично-монолитный
Балкон/лоджия
Есть (1 шт.)
ЖК
Симфония моря

Информация о квартире

Квартира: 1 к 33,20 кв.м., 2 этаж в комплексе Симфония моря, 1 очередь, корп.1, сдача: 1кв. , этажей: 5, адрес Пионерский г., Прибрежная ул., д. 23 корп 1, Застройщик: Модуль-Стройград.

Расположение

Вам могут понравиться

Фото специалиста
Руководитель НовостроекСпециалист по недвижимости