Продаётся 1-комн. квартира, 33 м²
id: XB53855
22 января
6 592 000 ₽
Пионерский, ул Прибрежная д. 23 корп 1
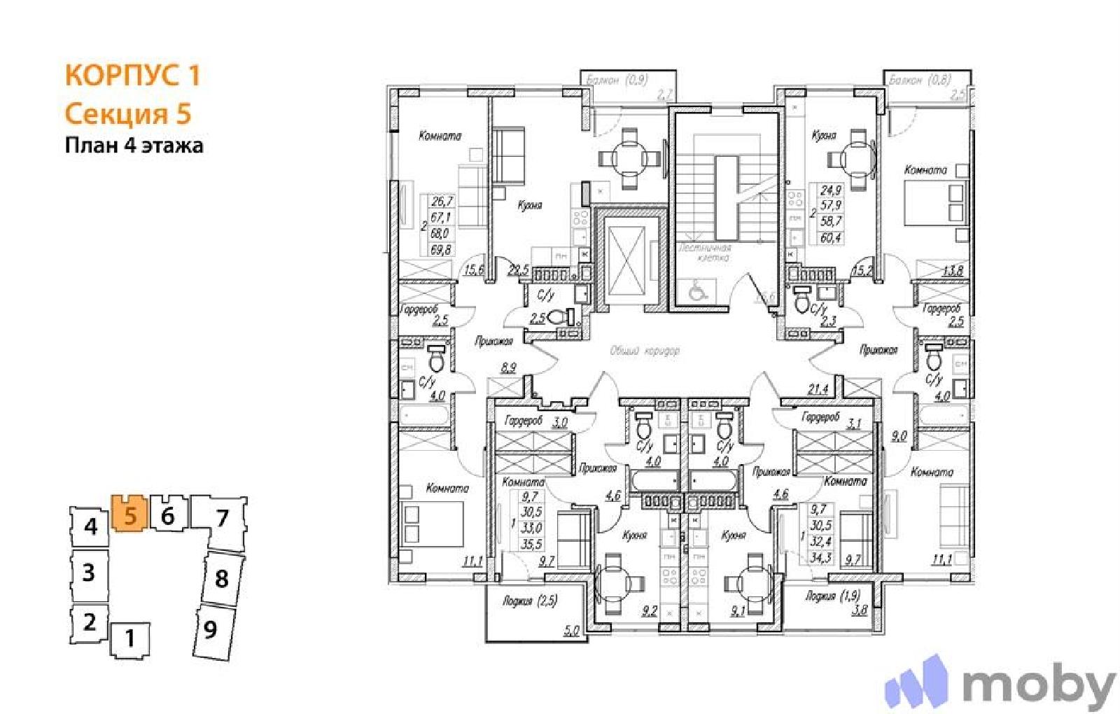
33 м²Общая
площадь
9.7 м²Жилая
площадь
4/5Этаж
Год постройки
2026
Материал стен
Кирпично-монолитный
Балкон/лоджия
Есть (1 шт.)
ЖК
Симфония моря
Информация о квартире
Квартира: 1 к 33,00 кв.м., 4 этаж в комплексе Симфония моря, 1 очередь, корп.1, сдача: 1кв. , этажей: 5, адрес Пионерский г., Прибрежная ул., д. 23 корп 1, Застройщик: Модуль-Стройград.
Расположение

Руководитель НовостроекСпециалист
по недвижимости