Продаётся 1-комн. квартира, 44 м²
id: YA23366
22 января
8 462 000 ₽
Пионерский, ул Прибрежная д. 23 корп 1
44 м²Общая
площадь
14.2 м²Жилая
площадь
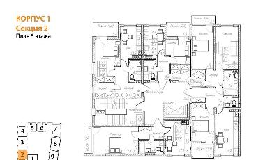
3/5Этаж
Год постройки
2026
Материал стен
Кирпично-монолитный
Балкон/лоджия
Есть (1 шт.)
ЖК
Симфония моря
Информация о квартире
Квартира: 1 к 44,00 кв.м., 3 этаж в комплексе Симфония моря, 1 очередь, корп.1, сдача: 1кв. , этажей: 5, адрес Пионерский г., Прибрежная ул., д. 23 корп 1, Застройщик: Модуль-Стройград.
Расположение

Руководитель НовостроекСпециалист
по недвижимости