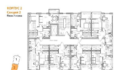
Продаётся 1-комн. квартира, 32.9 м²
id: YH79301
22 января
6 407 700 ₽
Пионерский, ул Прибрежная д. 23 корп 2
32.9 м²Общая
площадь
9.9 м²Жилая
площадь
2/5Этаж
Год постройки
2026
Материал стен
Кирпично-монолитный
Балкон/лоджия
Есть (1 шт.)
ЖК
Симфония моря
Информация о квартире
Квартира: 1 к 32,90 кв.м., 2 этаж в комплексе Симфония моря, 1 очередь, корп.2, сдача: 1кв. , этажей: 5, адрес Пионерский г., Прибрежная ул., д. 23 корп 2, Застройщик: Модуль-Стройград.
Расположение

Руководитель НовостроекСпециалист
по недвижимости