Чтобы наш сайт работал лучше мы используем cookie. Оставаясь с нами, вы соглашаетесь на их использование.  Настройки
×
Загрузка формы...

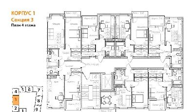
Продаётся 1-комн. квартира, 32.9 м²

id: YP32794
22 января

6 440 600 ₽

195 762 ₽ за м²
Пионерский, ул Прибрежная д. 23 корп 1
32.9 м²Общая площадь
9.7 м²Жилая площадь
4/5Этаж
Год постройки
2026
Материал стен
Кирпично-монолитный
Балкон/лоджия
Есть (1 шт.)
ЖК
Симфония моря

Информация о квартире

Квартира: 1 к 32,90 кв.м., 4 этаж в комплексе Симфония моря, 1 очередь, корп.1, сдача: 1кв. , этажей: 5, адрес Пионерский г., Прибрежная ул., д. 23 корп 1, Застройщик: Модуль-Стройград.

Расположение

Вам могут понравиться

Фото специалиста
Руководитель НовостроекСпециалист по недвижимости