Продаётся 2-комн. квартира, 55.8 м²
id: EY44059
16 февраля
8 020 400 ₽
Пионерский, ул Гептнера д. 21
55.8 м²Общая
площадь
24.97 м²Жилая
площадь
4/6Этаж
Год постройки
2023
Материал стен
Кирпичный
Балкон/лоджия
Есть (1 шт.)
ЖК
Пионерские огни
Информация о квартире
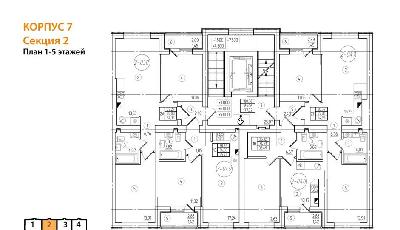
Квартира: 2 к 55,80 кв.м., 4 этаж в комплексе Пионерские огни, 4 очередь, корп.7, сдача: 3кв. , этажей: 6, адрес Пионерский г., Гептнера ул., д. 21, Застройщик: Модуль-Стройград.
Жилой комплекс расположен в городе Пионерский, в шаговой доступности от моря. Проектом предусмотрено семь малоэтажных домов комфорт - класса с автономным отоплением, стильной архитектурой, благоустроенной территорией и развитой инфраструктурой.
Покупателям предлагаются функциональные одно-, двухкомнатные квартиры, площадью от 36 кв. м до 58 кв. м, с продуманными планировочными решениями, панорамным остеклением лоджий и качественной отделкой «серый ключ». Кирпичные дома, высокая надежность, экологичность и прочность материала, качественное строительство и своевременная сдача домов. Комфорт и благоустроенная территория с детскими игровыми площадками.
Вся необходимая инфраструктура рядом: супермаркеты «Виктория» и «Спар», магазины, школа, детские сады, салоны красоты, поликлиника, спортивный центр, ж/д и автовокзал, автобусная остановка, расстояние до города Светлогорска – 5 минут на электричке и машине.
До побережья Балтийского моря - 800 метров, 15 минут пешком, где вас ждет просторный песчаный пляж, кафе и набережная для прогулок. До аэропорта - 15 мин по автобану. До развлекательной игровой зоны «Янтарная» - 3,5 км.
Расположение

Руководитель НовостроекСпециалист
по недвижимости