Чтобы наш сайт работал лучше мы используем cookie. Оставаясь с нами, вы соглашаетесь на их использование.  Настройки
×
Загрузка формы...

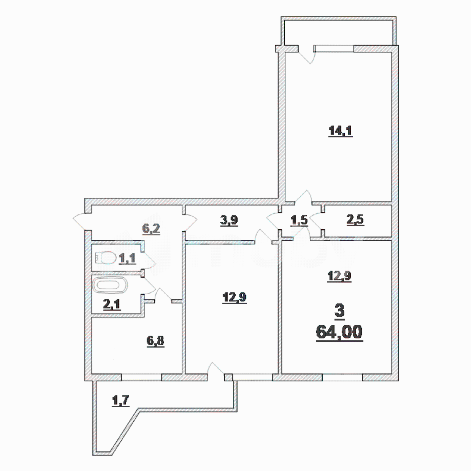
Продаётся 3-комн. квартира, 64 м²

id: XK87566
8 июля

9 700 000 ₽

151 562 ₽ за м²
Калининград, Ленинский проспект 83Д
64 м²Общая площадь
43.9 м²Жилая площадь
3/9Этаж
17.0 м² комн.1
13.9 м² комн.2
13.0 м² комн.3
Год постройки
1976
Есть
Парковка
Здание
под охраной
Материал стен
Кирпичный
Отопление
Теплоцентраль
Водоснабжение
Центральное
Балкон/лоджия
Есть (2 шт.)

Информация о квартире

Пpодаётcя 3-x кoмнaтная квартира в цeнтрe города.


В продаже уютная, теплая квартира на Ленинском проспекте.

О квартире:

  • Общая площадь 64кв.м.
  • Раздельный санузел.
  • Косметический ремонт.
  • Центральное отопление.
  • Две лоджии.

О доме:

  • Теплый дом,был проведeн кaпитальный ремoнт фacада.
  • Тихие дружелюбные соседи.
  • Хорошее транспортное сообщение с любой точкой города.

Рядом:

  • Рыбная деревня, Южный вокзал.
  • Музей изобразительных искусств.
  • Гимназия №22,Лицей №17, Детский сад №107, №19, №104, Музыкальная школа.
  • Супермаркеты SPAR, ВИКТОРИЯ, ГАСТРОНОМЪ №1.
  • Различные кафе и рестораны.


Прекрасное место для комфортной жизни в престижном районе города.

Отличное расположение, место для жизни и для бизнес инвестиций.


Гарантии от агентства "Моби":

 

🔒 Юридическая проверка документов.

🔒 Безопасные расчеты через аккредитив.

🔒 Помощь на всех этапах сделки.

 

Офис в центре: ул. 9 Апреля, 86А.

Звоните прямо сейчас! Организуем просмотр в удобное время.

Расположение

Вам могут понравиться

Фото специалиста
Анастасия ЗагайноваСпециалист по недвижимости