Чтобы наш сайт работал лучше мы используем cookie. Оставаясь с нами, вы соглашаетесь на их использование.  Настройки
×
Загрузка формы...

Продаётся 1-комн. квартира, 34.4 м²

id: XH74883
8 апреля

5 200 000 ₽

151 163 ₽ за м²
г Калининград, ул Печатная 47
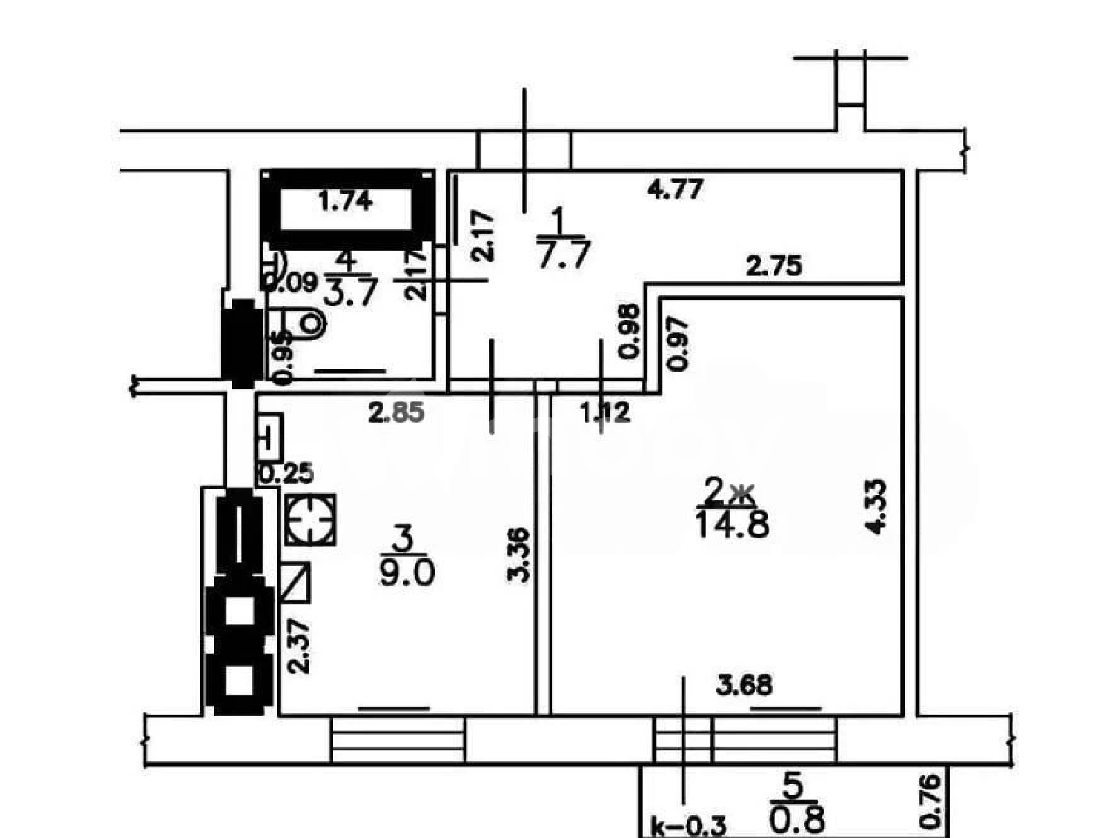
34.4 м²Общая площадь
14.8 м²Жилая площадь
7/7Этаж
14.8 м² комн.1
Год постройки
2008

Информация о квартире

Продаётся уютная 1‑комнатная квартира: комфорт и удобство в продуманной локации

Представляем к продаже светлую и уютную 1‑комнатную квартиру с косметическим ремонтом — идеальный вариант для комфортного проживания или выгодного вложения.

Основные характеристики:

  • Количество комнат: 1.
  • Общая площадь: 34,4 м2.
  • Площадь кухни: 9 м2.
  • Этаж: 7 из 7 (кирпичный дом 2008 года постройки).
  • Санузел: совмещённый.
  • Балкон: есть.
  • Гардеробная: просторная — позволяет удобно хранить вещи и освободить пространство в комнате от громоздких шкафов.
  • Окна: выходят на улицу, на солнечную сторону (тихая улица — спокойствие и комфорт).
  • Отопление: автономное, газовый котёл.

Внутреннее оснащение:

  • Ремонт: косметический
  • Мебель: остаётся кухня, системы хранения одежды, спальные места (детали обсуждаются индивидуально).
  • Техника: остаётся стиральная машина.

Условия продажи:

  • Способ продажи: свободная.
  • Ипотека: возможна.
  • Правоустанавливающие документы:
  • 1 собственник;
  • последняя смена собственника — 4 июня 2019 года;
  • нет ограничений и обременений;
  • проверка в Росреестре подтверждает совпадение площади, адреса и этажа.

Преимущества дома и окружения:

  • Инфраструктура:
  • в доме — пункт выдачи Ozon, оформляется Wildberries;
  • напротив — магазин «Красное & Белое»;
  • в шаговой доступности — супермаркет Spar и другие магазины.
  • Социальная инфраструктура:
  • детский сад № 124 — на прилегающей территории;
  • детские сады № 114 и 78 — в шаговой доступности;
  • школы № 3 и 46 — рядом.
  • Транспортная доступность: остановка общественного транспорта (маршруты во все части города) — в 200 м от дома, по освещённой и отремонтированной улице.
  • Безопасность и комфорт:
  • закрытая территория двора с детской площадкой;
  • парковка за шлагбаумом;
  • грузовой лифт в доме (удобно для семей с детьми)


Продажу объекта сопровождает Агентство недвижимости «Moby Estate» (основано 1997г.)


Предоставляем полное юридическое сопровождение, безопасность сделок; работаем с военной ипотекой, материнским капиталом; гарантия быстрой и безопасной сделки. Ответственный и честный подход с полным соблюдением интересов клиентов. Вы останетесь довольны качеством предоставляемых нами услуг.

Расположение

Вам могут понравиться

Фото специалиста
Данил СубботинСпециалист по недвижимости