Чтобы наш сайт работал лучше мы используем cookie. Оставаясь с нами, вы соглашаетесь на их использование.  Настройки
×
Загрузка формы...

Продаётся 2-комн. квартира, 62 м²

id: EO73632
13 апреля

7 749 000 ₽

124 984 ₽ за м²
г Калининград, Борисовский б-р 17
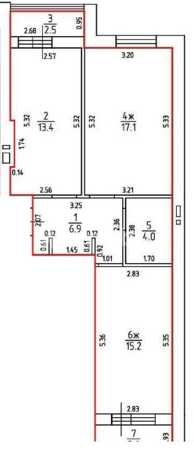
62 м²Общая площадь
32.3 м²Жилая площадь
4/9Этаж
13.4 м² комн.1
17.1 м² комн.2
Год постройки
2024

Информация о квартире

Продаётся стильная 2-комнатная квартира в современном кирпичном доме 2024 года постройки.


Общая площадь 62 м². Квартира с продуманной функциональной планировкой: изолированные комнаты (32 м²) создают комфортное личное пространство, а кухня 13 м² становится полноценной зоной для жизни и приёма гостей.

Выполнен качественный евро-ремонт в нейтральных тонах — интерьер легко адаптируется под любой вкус. Пространство наполнено светом за счёт удачного расположения окон (во двор и на улицу) и высоты потолков 2,7 м.

Квартира полностью готова к проживанию: установлена кухня, предусмотрены спальные места, есть кондиционер. Дополнительным преимуществом являются балкон и лоджия — возможность организовать зону отдыха или хранения.

Дом — новый кирпичный, что обеспечивает высокий уровень тепло- и шумоизоляции. Ухоженная входная группа, пассажирский лифт.

Закрытая, благоустроенная придомовая территория с детской и спортивной площадками создаёт комфортную среду для жизни. Для автомобилистов предусмотрена парковка во дворе.

Локация с развитой инфраструктурой: рядом находятся магазины, детский сад, сервисы доставки и всё необходимое для повседневного комфорта.

📌 Юридическая часть:

— Один собственник

— Свободная продажа

— Возможна ипотека

— Обременение (ипотека) — стандартная практика, без сложностей в сделке

— Полное соответствие данным Росреестра

Квартира для тех, кто ценит комфорт, качество и современный уровень жизни.


Продажу объекта сопровождает Агентство недвижимости «Moby Estate» (основано 1997г.)

Предоставляем полное юридическое сопровождение, безопасность сделок; работаем с военной ипотекой, материнским капиталом; гарантия быстрой и безопасной сделки. Ответственный и честный подход с полным соблюдением интересов клиентов. Вы останетесь довольны качеством предоставляемых нами услуг.

Расположение

Вам могут понравиться

Фото специалиста
Роберт КазаковСпециалист по недвижимости