Продаётся 2-комн. квартира, 56.5 м²
id: HY16544
4 апреля
10 900 000 ₽
г Калининград, ул Нарвская 83
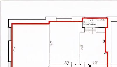
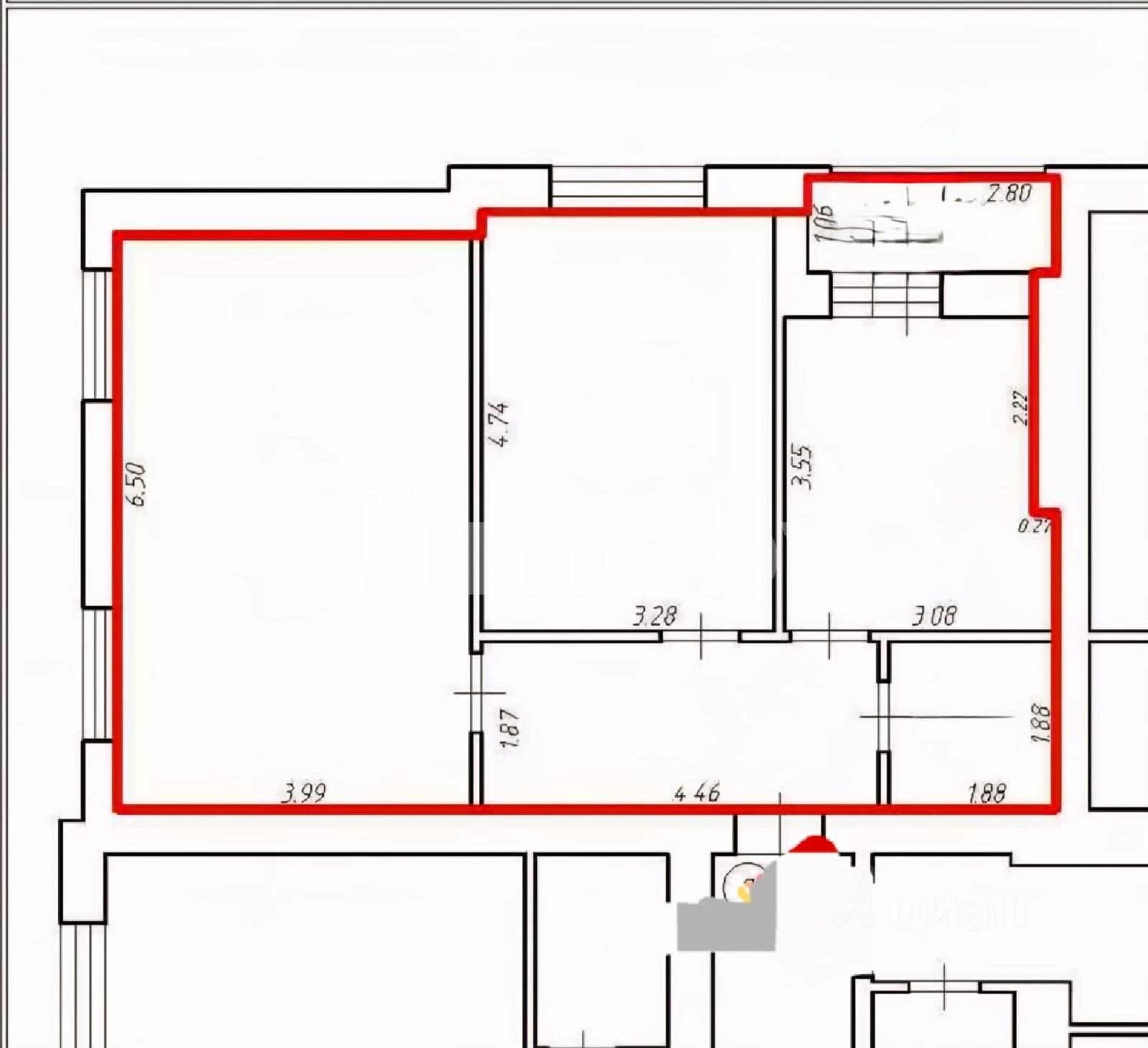
56.5 м²Общая
площадь
32 м²Жилая
площадь
9/9Этаж
19.0 м²
комн.1
16.0 м²
комн.2
Год постройки
2018
Информация о квартире
Стильная 2-комнатная квартира 56.5 м² с дизайнерским ремонтом в новом кирпичном доме (2018 г.)
Ключевые преимущества:
- Идеальный ремонт «под ключ»: Дизайнерский проект, качественные европейские материалы, вся мебель и техника остаются.
- Отличная планировка: Квартира-«распашонка» с изолированными комнатами и окнами на обе стороны. Светло и уютно.
- Престижный район: Ленинградский район, практически центр города. Развитая инфраструктура и удобная транспортная развязка.
- Новый дом: Кирпичный дом 2018 года постройки с закрытой территорией, лифтами и спортивной площадкой.
Детали о квартире:
- Общая площадь: 56.5 м² (жилая — 32.1 м², кухня — 9.2 м²).
- Планировка: 2 изолированные комнаты, совмещенный санузел, балкон.
- Этаж: 9/9, окна во двор и на улицу. Высота потолков — 2.7 м.
- Ремонт: Выполнен по дизайн-проекту с дорогими материалами: немецкие обои, ламинат 12 мм, керамогранит и мозаика в санузле, теплый пол в ванной, заказные двери и шторы.
- Комплектация: Вся мебель (кухня, шкафы, спальные места) и техника (холодильник, стиральная и посудомоечная машины, духовой шкаф, СВЧ) итальянского и европейского производства остаются новому владельцу.
Расположение и инфраструктура:
- Адрес: Калининград, ул. Нарвская, 83 (Ленинградский район).
- Район: Спокойный, зеленый. В шаговой доступности школы, детские сады, супермаркеты.
- Транспорт: Удобный выезд на окружную дорогу. До центра (площади) — 10-15 минут пешком.
О доме:
- Новый кирпичный дом (2018 г.), 9 этажей.
- Закрытая благоустроенная территория, спортивная площадка.
- Лифты (пассажирский и грузовой).
- Открытая парковка во дворе.
Важно: Квартира продается по причине переезда, в отличном состоянии. Все схемы коммуникаций сохранились. Возможен небольшой торг для серьезного покупателя. Собственник.
Идеально для: Семьи с детьми, кто ценит качественный ремонт, комфорт и готовое решение для жизни без дополнительных вложений.
Продажу объекта сопровождает агентство недвижимости «MOBY.ESTATE».
Обеспечиваем грамотное оформление документов, юридическую проверку и безопасность расчетов.
Офис в центре города: ул. 9 Апреля, 86а.
- Работаем со всеми банками, оказываем помощь в одобрении всех видов и любой сложности ипотеки, сопровождаем сделку с момента встреч и с Вами и до Вашего заселения в квартиру.
Расположение
Вам могут понравиться

Татьяна АндрееваСпециалист
по недвижимости